Constructia noului campus scolar pentru invatamantul special din Oradea, investitie de circa 16 milioane de euro, ar putea beneficia de finantare europeana prin includerea in Planul National de Recuperare si Rezilienta, in cadrul caruia campusurile scolare vor avea o linie de finantare separata."Am analizat posibilitatea de preluare la finantare a proiectului destinat invatamantului special in cadrul Planului National de Recuperare si Rezilienta, unde campusurile scolare vor avea o linie de finantare separata. Pentru aceasta, Consiliul Judetean (CJ) Bihor va face demersurile catre Ministerul Fondurilor Europene (MFE) in vederea includerii la finantare si va pregati toate documentatiile pe care le-a intocmit pentru ca acestea sa fie preluate in cadrul Planului National de Recuperare si Rezilienta avand in vedere ca este un obiectiv strategic, dedicat procesului educational la nivel judetean", a declarat ministrul Fondurilor Europene, Marcel Bolos.
Reprezentantul MFE si presedintele CJ Bihor, Pásztor Sándor, s-au intalnit ieri la Oradea pentru a discuta posibilitatea prelurarii finantarii acestui proiect.
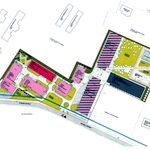
Potrivit edilului bihorean, constructia campusului va fi derulata in doua etape. "In prima faza se va construi infrastructura pentru desfasurarea invatamantului special primar si gimnazial. Este vorba despre un proiect in valoare de 78,15 milioane de lei (inclusiv TVA), suma din care CJ Bihor poate asigura aproximativ 16 milioane de lei. In cea de-a doua etapa, aflata in faza de proiectare, se va asigura infrastructura pentru invatamantul liceal", a spus Pásztor Sándor.
In urma cu o saptamana, CJ Bihor a semnat ordinul de incepere a lucrarilor de constructii la campusul scolar pentru invatamant special ce va fi ridicat pe strada Ceyrat nr. 4, din Oradea. Valoarea investitiei este de 78,15 milioane de lei (circa 16 milioane de euro), iar lucrarile vor fi realizate de asocierea Drum Asfalt (lider) - Trameco - Vega '93 - Struktoplan.
Pe terenul cu suprafata de 2,8 hectare vor fi ridicate, in urmatoarele 36 de luni, opt cladiri cu pana la patru etaje, in care vor functiona sali de studiu pentru elevii din ciclul de invatamant prescolar si gimnazial, o biblioteca, ateliere pentru practica, un internat, o sala de mese, mai multe cabinete medicale, un bazin pentru hidroterapie si o sala de sport. Pe amplasament vor mai fi amenajate spatii pentru terapie cu animale, o gradina cu legume si o livada.




